Zum Hauptinhalt springen

Neues Projekt in Selm: 128 Einfamilienhäuser und 82 Wohnungen

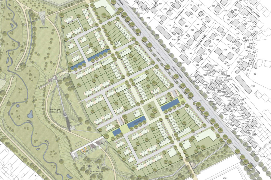
Im Kreis Unna realisieren wir ab sofort in neun Bauabschnitten 128 Einfamilienhäuser und 82 Eigentumswohnungen in Selm. Das Besondere: Das Entwicklungsgebiet an der Münsterlandstraße liegt direkt am 2020 eröffneten Landschaftspark Auenpark. Geplant sind insgesamt 25.375 m² Wohnfläche, außerdem drei Tiefgaragen mit zusammen 82 Stellplätzen für die Mehrfamilienhäuser sowie Carports für die Einfamilienhäuser. Alle Bauten sollen begrünte Dachflächen erhalten. Das komplette Projekt soll bis Ende 2026 abgeschlossen sein.
Neues Projekt in Selm: 128 Einfamilienhäuser und 82 Wohnungen - News Bild

Die WILMA Immobilien-Gruppe

Die WILMA Immobilien-Gruppe ist bundesweit eines der führenden Unternehmen für die Entwicklung und Realisierung von Wohnimmobilien und ist in den Regionen Nordrhein-Westfalen, Rhein-Main, Baden-Württemberg, Bayern und Berlin-Brandenburg tätig.

WILMA konzentriert sich dabei seit über 85 Jahren auf die Optimierung des Preis-Leistungs-Verhältnisses von Wohnimmobilien. Nicht nur, um für Städte und Kommunen bezahlbaren Wohnraum zu schaffen, sondern auch, um der breiten Bevölkerungsschicht Zugang zu Wohneigentum zu ermöglichen - ohne dabei auf Ökologie, Bauqualität oder Ästhetik zu verzichten.

WILMA bleibt als finanzstarker Investor vom Grundstücksankauf bis hin zur schlüsselfertigen Übergabe vollverantwortlich. Ob gemischt genutzte Immobilien, Geschosswohnungsbau, Reihen-, Doppel- oder freistehendes Einfamilienhaus – als Entwickler zukunftsfähiger Wohnlösungen steht WILMA für solide, termingerecht erstellte Bauqualität ganzer Stadtteile, für ökologische Freiraumplanung und moderne Energiekonzepte. Und macht regelmäßig Eigennutzer, aber auch institutionelle Investoren, Kapitalanleger und Family Offices zu zufriedenen Eigentümern wertsteigernder Wohnimmobilien.