Zum Hauptinhalt springen

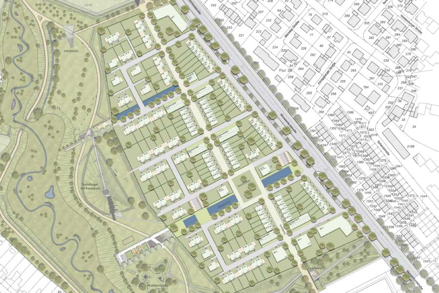
Willkommen im Wohnquartier AM AUENPARK in Selm. Entdecken Sie unsere vielfältigen und inspirierenden Haustypen. Finden Sie Ihr neues Zuhause in grüner Lage mit besten Aussichten für die Zukunft.

Eigentumswohnungen

Attraktive, gute geschnittene 2–4 Zimmerwohnungen mit Wohnflächen von 54–128 m², jeweils entweder mit Gartenanteil, Balkon oder Penthouse-Terrasse.

Doppelhaushälften W145

Modern gestaltete und ausgestattete Doppelhaushälften mit knapp 155 m² Wohnfläche, eigenem Garten mit Terrasse sowie einer eigenen Garage.

Reihenhäuser W183

Ansprechende Reihenhäuser mit 5 Zimmern bei 136 m² Wohnfläche und Dachterrasse im Staffelgeschoss sowie eigenem Garten plus Stellplatz in einer Carport-Anlage.

Einfamilienhäuser W232

Individuelle freistehende Einfamilienhäuser mit viel Platz, interessanter Raumaufteilung, gelungenem Grundriss mit fünf Zimmern und – selbstverständlich eigenem Garten und Garage.

Das Baugebiet